Shtepi ne shitje Apartament ne Tirane, 2+1, Mobilimi Bosh, pa mobiluar, Pagesa 139,360 Euro.

Shtepi ne shitje 53935 Njoftime
17/01/2025
12:50
Share Save
Pagesa 139,360 Euro
Mobilimi 2+1, Bosh, pa mobiluar
Siperfaqa 106 m²
Kati Kati 6, Ashensor 1
Ambienti Apartament
Distanca 2.33 km nga qendra
Vleresim i sistemit ne qera 458 Euro
Qyteti - Zona Tirane - Rinas/Aeroporti
Adresa Ish Fusha e Aviacionit
PostID: 438951
Lexime:66
Data: 17/01/2025 Ora: 12:50
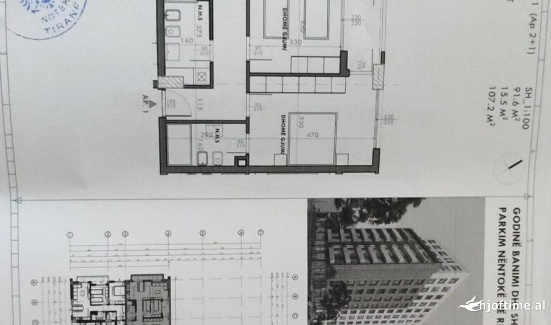
Shitet apartament 2+1 tek Ish Fusha e Aviacionit 

Siperfaqe totale: 107.2 m2
Siperfaqe neto: 91.6m2
Kati: 6

Organizohet:
- Dhome ndenje + gatimi
- 2 dhoma gjumi
- 2 tualet 
- ⁠Ballkon 
 
Apartamenti eshte ne faze ndertimi, karabina.

Adresa: Ish Fusha e Aviacionit 
Cmimi: 139,360 €

Ndaje
Postimet e reja ne Shtepi ne shitje dhe Prona Imobiliare
Shitet apartament 2+1 tek Univers city/115,000 euro
Pagesa 155,000 Euro
02/03/2026 14:49

Adresa: Univers City, Zone Periferike, Tirane

Shiko Detajet
Shitet Apartament 1+1 ne Don Bosko/120,000 euro
Pagesa 120,000 Euro
02/03/2026 14:48

Adresa: Ne Hyrje Te Rruges Don Bosko, Don Bosko , Tirane

Shiko Detajet
Shitet apartament 2+1 ne Kamez /76,000 euro
Pagesa 76,000 Euro
02/03/2026 14:48

Adresa: Kamez , Venatino 2 Residence, Kamez/Paskuqan/Babrru , Tirane

Shiko Detajet