Shtepi ne shitje Apartament ne Tirane, 2+1, Mobilimi Bosh, pa mobiluar, Pagesa 239,257 Euro.

Shtepi ne shitje 53953 Njoftime
14/10/2025
12:20
Share Save
Pagesa 239,257 Euro
Mobilimi 2+1, Bosh, pa mobiluar
Siperfaqa 128 m²
Kati Kati 3, Ashensor 1
Ambienti Apartament
Distanca 2.28 km nga qendra
Vleresim i sistemit ne qera 845 Euro
Qyteti - Zona Tirane - Rruga e Durresit/Zogu i zi
Adresa Rruga Dritan Hoxha
PostID: 529568
Lexime:275
Data: 14/10/2025 Ora: 12:20
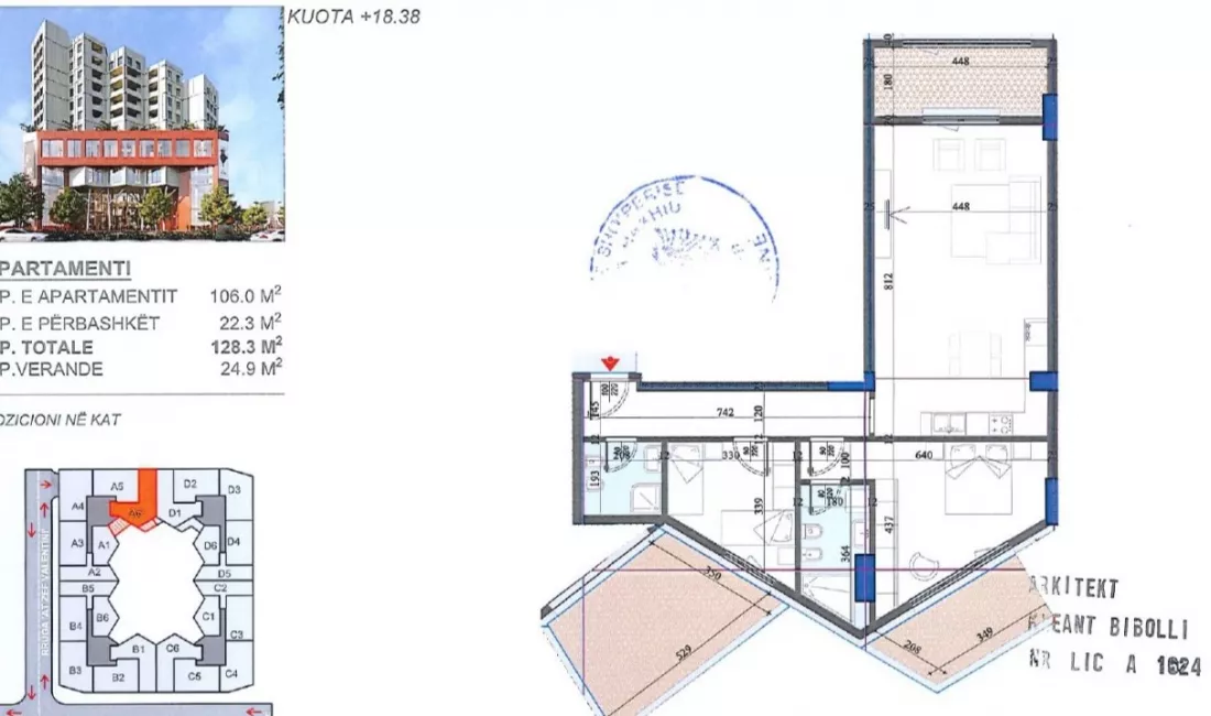
Shitet Apartament 2+1+2 tek Colonade,  Zogu i Zi

Siperfaqe apartamenti :128.3m2
Siperfaqe verande: 24.9 m2 (850 euro/m2) 
Kati: 3 banim

Organizohet : 
- Sallon ndenje + Ambient Gatimi 
- 2 Dhoma gjumi 
- 2 Tualete
- 3 ballkone

Godina ndodhet 10 minuta larg Qendrës së Tiranës, 
e pozicionuar në një zonë ku ndërtimet e reja 7-12 kate janë formacionet urbane kryesore që e definojnë zhvillimin e zonës.
Struktura trekëndore e këtij projekti bën të mundur që ndricimi natyral të depërtojë në cdo tipologji apartamenti dhe orientimi.
Objekti eshte ne ndertim e siper. 

Orientimi: Jug-Lindje
 Vendodhja: Rr.Dritan Hoxha, prane Zogut te Zi

Cmimi per shitje: 239,275 euro

Ndaje
Postimet e reja ne Shtepi ne shitje dhe Prona Imobiliare
Shitet apartament 2+1 ne Kamez/82,220 €
Pagesa 82,220 Euro
06/01/2026 11:21

Adresa: Prane Rrethit Te Ullirit , Kamez, Kamez/Paskuqan/Babrru , Tirane

Shiko Detajet
Shitet apartament 1+1 ne Kamez/63,580 euro
Pagesa 63,580 Euro
06/01/2026 11:19

Adresa: Prane Rrethit Te Ullirit , Kamez, Kamez/Paskuqan/Babrru , Tirane

Shiko Detajet
Shitet apartament 2+1 ne Kamez/86.950 €
Pagesa 86,950 Euro
06/01/2026 11:18

Adresa: Prane Rrethit Te Ullirit , Kamez, Kamez/Paskuqan/Babrru , Tirane

Shiko Detajet