Shtepi ne shitje Apartament ne Tirane, 1+1, Mobilimi Bosh, pa mobiluar, Pagesa 78,900 Euro.

Shtepi ne shitje 53964 Njoftime
29/10/2025
10:59
Share Save
Pagesa 78,900 Euro
Mobilimi 1+1, Bosh, pa mobiluar
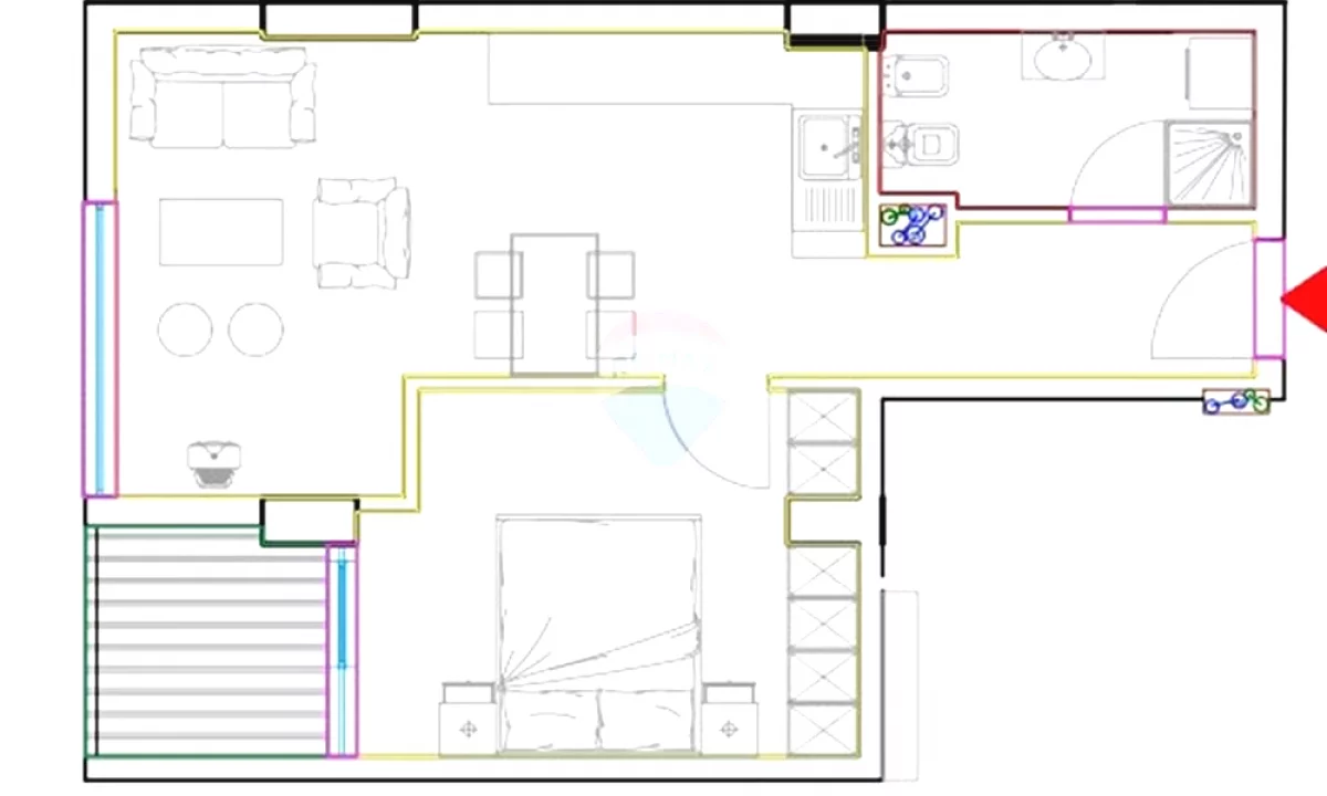
Siperfaqa 66 m²
Kati Kati 2, Ashensor 1
Ambienti Apartament
Distanca 3.97 km nga qendra
Deal? Po pranojme agjensi
Vleresim i sistemit ne qera 282 Euro
Qyteti - Zona Tirane - Laprake
Adresa Casa Italia
PostID: 556387
Lexime:165
Data: 29/10/2025 Ora: 10:59
Shitet apartament 1+1 pranë Casa Italias.

Apartamenti ka një sipërfaqe totale prej 65.7 m² dhe 55 m² neto, i pozicionuar ne katin e gjashte dhe është i organizuar në:

1 dhomë ndenjeje
Kuzhine
1 dhomë gjumi
1 tualet
Ballkon
Korridor shpërndarës
Ndaje
Postimet e reja ne Shtepi ne shitje dhe Prona Imobiliare
Shitet apartament 2+1+2 prane Casa Italias!
Pagesa 121,200 Euro
29/10/2025 11:07

Adresa: Casa Italia, Laprake, Tirane

Shiko Detajet
Shitet apartament 1+1 prane Casa Italias!
Pagesa 78,900 Euro
29/10/2025 10:59

Adresa: Casa Italia, Laprake, Tirane

Shiko Detajet
SHESIM APARTAMENT 2+1 RRUGA E ELBASANIT!
Pagesa 180,000 Euro
17/10/2025 11:17

Adresa: Qyteti Studenti, Tiranë, Shqipëria, Qyteti Studenti/Vilat Gjermane , Tirane

Shiko Detajet