Shtepi ne shitje Apartament ne Tirane, 2+1, Mobilimi Bosh, pa mobiluar, Pagesa 124,812 Euro.

Shtepi ne shitje 53871 Njoftime
14/11/2025
14:28
Share Save
Pagesa 124,812 Euro
Mobilimi 2+1, Bosh, pa mobiluar
Siperfaqa 104 m²
Kati Kati 6, Ashensor 1
Ambienti Apartament
Distanca 3.82 km nga qendra
Deal? Po pranojme agjensi
Vleresim i sistemit ne qera 410 Euro
Qyteti - Zona Tirane - Kamez/Paskuqan/Babrru
Adresa Paskuqan
PostID: 560898
Lexime:749
Data: 14/11/2025 Ora: 14:28
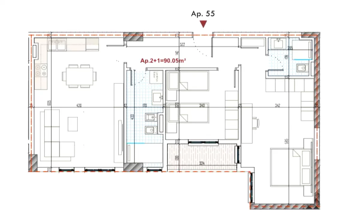
Të dhëna mbi apartamentin :

● Ambient Ndenjie + Ambient Gatimi
● 2 Dhoma Gjumi
●104.01 m² bruto
● 90.05 m² neto
● 13.96 m² te perbashketa
● Kati 6 i fundit
● Ashensor
● 2 tualete
● 1 ballkon
● Faze shtrimi pllakash
● 1200 €/m²
● Mundesi pagese me keste

Për më shumë informacione ose për një vizitë në këtë pronë na kontaktoni.

Shitet, Apartament 2+1+2, Ringside Residence/Paskuqan, Tiranë - 124,812€ | 104.01 m²
Të dhëna mbi apartamentin : ● Ambient Ndenjie + Ambient Gatimi ● 2 Dhoma Gjumi ●104.01 m² bruto ● 90.05 m² neto ● 13.96 m² te perbashketa ● Kati 6 i fundit ● Ashensor ● 2 tualete ● 1 ballkon ● Faze shtrimi pllakash ● 1200 €/m² ● Mundesi pagese me keste Për më shumë informacione ose për një...
  [URL]

ID: URB3386
Ndaje
Postimet e reja ne Shtepi ne shitje dhe Prona Imobiliare
Tirane, shitet apartament 1+1 Kati 6, 70 m² 84.072 € (Paskuqan)
Pagesa 84,072 Euro
18/11/2025 22:51

Adresa: Paskuqan, Bashkia Kamëz, Shqipëria, Kamez/Paskuqan/Babrru , Tirane

Shiko Detajet
Shitet, Apartament 1+1, Ringside Residence/Paskuqan, Tiranë - 80,676€ | 67.23 m²
Pagesa 80,676 Euro
14/11/2025 14:13

Adresa: Paskuqan, Kamez/Paskuqan/Babrru , Tirane

Shiko Detajet
Tirane, shitet apartament 2+1 Kati 7, 111 m² 115.471 € (Paskuqan)
Pagesa 115,471 Euro
30/10/2025 11:00

Adresa: Paskuqan, Bashkia Kamëz, Shqipëria, Kamez/Paskuqan/Babrru , Tirane

Shiko Detajet