Shtepi ne shitje Apartament ne Vlore, 3+1, Mobilimi Bosh, pa mobiluar, Pagesa 643,000 Euro.
20/11/2025
07:48
| Pagesa | 643,000 Euro |
|---|---|
| Mobilimi | 3+1, Bosh, pa mobiluar |
| Siperfaqa | 258 m² |
| Kati | Kati 1, Ashensor 1 |
| Ambienti | Apartament |
| Distanca | 32.56 km nga qendra |
| Deal? | Po pranojme agjensi |
| Vleresim i sistemit ne qera | 1959 Euro |
| Qyteti - Zona | Vlore - Qender |
| Adresa | Green Coast Residence, Qarku i Vlores, Shqiperia |
|
PostID: 562426
Lexime:238 |
Data: 20/11/2025
Ora: 07:48
|
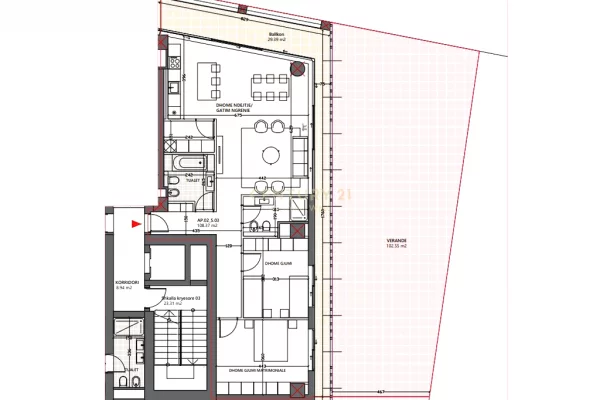
Apartament modern 3+1 në kompleksin ekskluziv Vlora Marina – një nga adresat më të kërkuara bregdetare në Shqipëri.
Ky apartament ofron një organizim funksional, hapësira të bollshme dhe pamje të mrekullueshme drejt portit dhe detit, duke e bërë ideal si për banim familjar ashtu edhe si investim afatgjatë.
• Sipërfaqe neto: 137.76 m²
• Sipërfaqe bruto: 257.90 m²
• Sipërfaqe VERANDE: 102.55 m²
Organizimi i brendshëm
Salloni i ndritshëm me kuzhinë të përbashkët dhe akses direkt në verandë të madhe me pamje fantastike.
Dhoma matrimoniale me hapësirë komode dhe dalje në verandë.
Dy dhoma gjumi shtesë me dimensione ideale për fëmijë, zyra apo mysafirë.
Dy tualete bashkëkohore të pozicionuar në mënyrë praktike.
Korridor shpërndarës që ofron intimitet dhe funksionalitet maksimal.
Përparësitë e kompleksit Vlora Marina
Arkitekturë moderne dhe ndërtim me standarde të larta.
Pozicionim direkt në vijën e parë të detit.
Marina e dedikuar, ambiente shërbimi dhe hapësira publike të konceptuara për stil jetese premium.
Pamje panoramike detare dhe akses në promenadë.
Ky apartament përfaqëson një mundësi të rrallë për të jetuar ose investuar në një nga projektet më prestigjioze në bregdetin shqiptar.
Ky apartament ofron një organizim funksional, hapësira të bollshme dhe pamje të mrekullueshme drejt portit dhe detit, duke e bërë ideal si për banim familjar ashtu edhe si investim afatgjatë.
• Sipërfaqe neto: 137.76 m²
• Sipërfaqe bruto: 257.90 m²
• Sipërfaqe VERANDE: 102.55 m²
Organizimi i brendshëm
Salloni i ndritshëm me kuzhinë të përbashkët dhe akses direkt në verandë të madhe me pamje fantastike.
Dhoma matrimoniale me hapësirë komode dhe dalje në verandë.
Dy dhoma gjumi shtesë me dimensione ideale për fëmijë, zyra apo mysafirë.
Dy tualete bashkëkohore të pozicionuar në mënyrë praktike.
Korridor shpërndarës që ofron intimitet dhe funksionalitet maksimal.
Përparësitë e kompleksit Vlora Marina
Arkitekturë moderne dhe ndërtim me standarde të larta.
Pozicionim direkt në vijën e parë të detit.
Marina e dedikuar, ambiente shërbimi dhe hapësira publike të konceptuara për stil jetese premium.
Pamje panoramike detare dhe akses në promenadë.
Ky apartament përfaqëson një mundësi të rrallë për të jetuar ose investuar në një nga projektet më prestigjioze në bregdetin shqiptar.
WEST127494