Shtepi ne shitje Apartament ne Tirane, 2+1, Mobilimi Bosh, pa mobiluar, Pagesa 257,780 Euro.

Shtepi ne shitje 53871 Njoftime
19/02/2026
17:35
Share Save
Pagesa 257,780 Euro
Mobilimi 2+1, Bosh, pa mobiluar
Siperfaqa 108 m²
Kati Kati 1, Ashensor 1
Ambienti Apartament
Distanca 4.32 km nga qendra
Vleresim i sistemit ne qera 847 Euro
Qyteti - Zona Tirane - Sauk/Mjull-Bathote
Adresa Mjull Bathore
PostID: 572811
Lexime:176
Data: 19/02/2026 Ora: 17:35
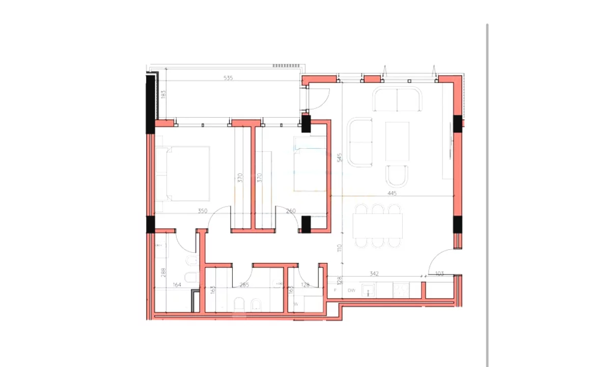
Shitet, Apartament 2+1+2+Post Parkimi, Maison De La Terre Residence, Tiranë.
Apartamenti ndodhet në Mjull-Bathore.
Informacion mbi apartamentin:
• Sipërfaqja bruto: 108.27 m2.
• Sipërfaqja neto: 97.55 m2.
• Kati 1.
• Fazë ndërtimi.
Organizimi:
• Ambient ndenje.
• Ambient gatimi.
• 2 Dhoma gjumi.
• 2 Tualete.
• Ballkon.
Cilësime të tjera:
• Cilësi e lartë ndërtimi.
• Arkitekturë moderne.
Për një vizitë në pronë na kontaktoni!
AL62049

Eris Veliu [NR]
Ndaje
Postimet e reja ne Shtepi ne shitje dhe Prona Imobiliare
Shitet, Apartament 1+1+Post Pakimi, Maison De La Terre Residence në Mjull-Bathore.
Pagesa 177,069 Euro
06/03/2026 16:40

Adresa: Mjull-bathore, Sauk , Tirane

Shiko Detajet
Shitet, Apartament 2+1, Park Houses Residence, Tiranë. në Mjull-Bathore.
Pagesa 191,000 Euro
23/02/2026 09:43

Adresa: Mjull Bathore, Sauk , Tirane

Shiko Detajet
Shitet, Apartament 2+1+2, Park Houses Residence, në Mjull-Bathore.
Pagesa 190,000 Euro
20/02/2026 16:05

Adresa: Mjull Bathore, Sauk , Tirane

Shiko Detajet