Shtepi ne shitje Apartament ne Tirane, 1+1, Mobilimi Bosh, pa mobiluar, Pagesa 115,000 Euro.

Shtepi ne shitje 53871 Njoftime
14/01/2026
09:22
Share Save
Pagesa 115,000 Euro
Mobilimi 1+1, Bosh, pa mobiluar
Siperfaqa 61 m²
Kati Kati 1, Ashensor 1
Ambienti Apartament
Distanca 1.49 km nga qendra
Vleresim i sistemit ne qera 414 Euro
Qyteti - Zona Tirane - Lumi Lana/ Bulevard
Adresa Bulevardi Bajram Curri Tirane,Shqiperia
PostID: 573711
Lexime:121
Data: 14/01/2026 Ora: 09:22

šŸ¢Prane Martenitetit
te Ri,Bulevardi ā€œBajram Curriā€ shitet apartament 1+1, 115,000Euro



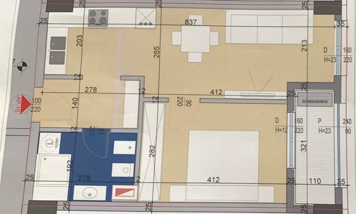
Apartamenti ka siperfaqe
totale 61.88m2Ā  ku 52.40 m2
jane siperfaqe banimi te organizuara ne ambient ndenje,1 dhome gjumi,1 tualet
dhe 1 ballkon.
Ndodhet ne katin e 1-re banim te nje pallati te pajisur me
ashensor.



šŸ“ Siperfaqe bruto:61.88
m2



šŸ“ Siperfaqe neto : 52.40
m2



šŸ“ Siperfaqe te
perbashket:Ā Ā Ā  9.48m2



🪜 Apartamenti ndodhet ne katin
e 1-re .



šŸ“„ Ne faze ndertimi
(Aktualisht ne faze tulle,ndarje e brendeshme )



šŸŒž Orientimi:Perendim



Cmimi total: 115,000Euro



šŸ“² Per nje
informacion me te detajuar dhe nje vizite ne prone na kontaktoni ne numrin e
telefonit te Agjensise Imobiliare [NR]


Ndaje
Postimet e reja ne Shtepi ne shitje dhe Prona Imobiliare
šŸ¢Rruga Irfan Tomini,prane Big Market shitet apartament 1+1 i pershtatur ne 2+1, 100,000€uro
Pagesa 100,000 Euro
11/02/2026 10:58

Adresa: Rruga Irfan Tomini Tiranƫ,shqipƫria, Lumi Lana/ Bulevard , Tirane

Shiko Detajet
šŸ¢Tek Fusha e Ali Demit,shitet apartament 1+1,e mobiluar 105,000€
Pagesa 105,000 Euro
17/03/2026 12:08

Adresa: Rruga Ali Demi Tiranƫ,shqipƫria, Ali Demi/Tregu Elektrik , Tirane

Shiko Detajet
šŸ¢Tek Fusha e Ali Demit,shitet apartament 1+1,e mobiluar 105,000€uro
Pagesa 105,000 Euro
17/03/2026 11:12

Adresa: Ali Demi, Ali Demi/Tregu Elektrik , Tirane

Shiko Detajet