Shtepi ne shitje Apartament ne Tirane, 2+1, Mobilimi Bosh, pa mobiluar, Pagesa 208,000 Euro.
13/02/2026
14:21
| Pagesa | 208,000 Euro |
|---|---|
| Mobilimi | 2+1, Bosh, pa mobiluar |
| Siperfaqa | 81 m² |
| Kati | Kati 8, Ashensor 1 |
| Ambienti | Apartament |
| Distanca | 2.35 km nga qendra |
| Deal? | Po pranojme agjensi |
| Vleresim i sistemit ne qera | 691 Euro |
| Qyteti - Zona | Tirane - Ali Demi/Tregu Elektrik |
| Adresa | Rruga Mihal Grameno Tirane,Shqiperia |
|
PostID: 581556
Lexime:164 |
Data: 13/02/2026
Ora: 14:21
|
Apartament 2+1 në shitje në Nokia Residence – Rezidencë e re nga Kontakt, Ali Demi, Tiranë | Mundësi blerjeje me kredi deri në 80%
Ofrohet për shitje apartament modern 2+1 në Nokia Residence, një projekt bashkëkohor në zonën Ali Demi, Tiranë.
Prona është e përshtatshme për financim me kredi bankare deri në 80% dhe përfaqëson një zgjedhje ideale si për banim familjar ashtu edhe për investim afatgjatë në një rezidencë të re me standarde të larta ndërtimi.
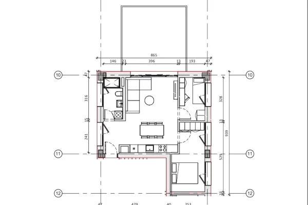
📐 Të dhëna kryesore të pronës:
* Tipologjia: Apartament 2+1
* Sipërfaqe totale: 81.3 m²
* Sipërfaqe e brendshme: 66 m²
* Kati: 8
* Orientimi: Lindje/Perendim/Veri
* 1 Sallon + Kuzhinë
* 2 Dhoma gjumi
* 1 Tualet me dritare
* Lartësia e katit: 2.78 m
✨ Karakteristika & Cilësi Ndërtimi:
* Fasadë termoizoluese dhe eficiencë energjetike
* Dritare alumini termik dhe hidroizolim i plotë
* Konstruksion antisizmik
* Instalime për kondicionim multisplit
* Tuba multistrat për furnizim uji
* Dyer të brendshme gjermane dhe derë e blinduar
* Laminat cilësor AC5 dhe pllaka porcelani në tualet
* Ambiente të gjelbra dhe hapësira relaksi në rezidencë
📍 Vendndodhja strategjike në Ali Demi ofron akses të shpejtë me qendrën e Tiranës dhe shërbime të shumta pranë si farmaci, stacion autobusi, markete dhe ambiente sociale.
💰 Çmimi: 208,000 €
🏦 Mundësi blerjeje me kredi bankare deri në 80%.
📩 Na kontaktoni për planimetrinë, detaje shtesë dhe vizitë në pronë.
#NokiaResidence #ApartamentNeShitje #Tirane #RezidenceRe #Apartament2plus1 #KrediBankare #Kontakt#shitje #shitjeapartament #rezidencaNokia #NokiaResidence #apartament2plus1 #21Nokia
#BibaProperty #BibaPropertyShitje #cmimi208000Euro #208000Euro #lokacionPremium
#lokacionStrategjik #lokacionQendror #lokacionIdeal #rezidencaNeShitje #apartamentNeRezidenca
#shitjeNokia #proneNokia #investimNokia #BibaProperty#Nokia
Ofrohet për shitje apartament modern 2+1 në Nokia Residence, një projekt bashkëkohor në zonën Ali Demi, Tiranë.
Prona është e përshtatshme për financim me kredi bankare deri në 80% dhe përfaqëson një zgjedhje ideale si për banim familjar ashtu edhe për investim afatgjatë në një rezidencë të re me standarde të larta ndërtimi.
📐 Të dhëna kryesore të pronës:
* Tipologjia: Apartament 2+1
* Sipërfaqe totale: 81.3 m²
* Sipërfaqe e brendshme: 66 m²
* Kati: 8
* Orientimi: Lindje/Perendim/Veri
* 1 Sallon + Kuzhinë
* 2 Dhoma gjumi
* 1 Tualet me dritare
* Lartësia e katit: 2.78 m
✨ Karakteristika & Cilësi Ndërtimi:
* Fasadë termoizoluese dhe eficiencë energjetike
* Dritare alumini termik dhe hidroizolim i plotë
* Konstruksion antisizmik
* Instalime për kondicionim multisplit
* Tuba multistrat për furnizim uji
* Dyer të brendshme gjermane dhe derë e blinduar
* Laminat cilësor AC5 dhe pllaka porcelani në tualet
* Ambiente të gjelbra dhe hapësira relaksi në rezidencë
📍 Vendndodhja strategjike në Ali Demi ofron akses të shpejtë me qendrën e Tiranës dhe shërbime të shumta pranë si farmaci, stacion autobusi, markete dhe ambiente sociale.
💰 Çmimi: 208,000 €
🏦 Mundësi blerjeje me kredi bankare deri në 80%.
📩 Na kontaktoni për planimetrinë, detaje shtesë dhe vizitë në pronë.
#NokiaResidence #ApartamentNeShitje #Tirane #RezidenceRe #Apartament2plus1 #KrediBankare #Kontakt#shitje #shitjeapartament #rezidencaNokia #NokiaResidence #apartament2plus1 #21Nokia
#BibaProperty #BibaPropertyShitje #cmimi208000Euro #208000Euro #lokacionPremium
#lokacionStrategjik #lokacionQendror #lokacionIdeal #rezidencaNeShitje #apartamentNeRezidenca
#shitjeNokia #proneNokia #investimNokia #BibaProperty#Nokia