Shtepi ne shitje Apartament ne Tirane, 1+1, Mobilimi Bosh, pa mobiluar, Pagesa 56,464 Euro.
17/02/2026
11:14
| Pagesa | 56,464 Euro |
|---|---|
| Mobilimi | 1+1, Bosh, pa mobiluar |
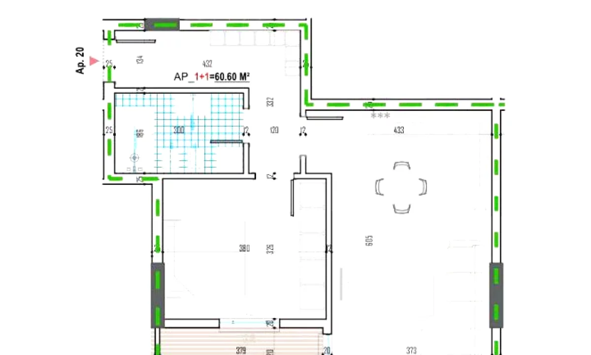
| Siperfaqa | 71 m² |
| Kati | Kati 4, Ashensor 1 |
| Ambienti | Apartament |
| Distanca | 3.82 km nga qendra |
| Deal? | Po pranojme agjensi |
| Vleresim i sistemit ne qera | 202 Euro |
| Qyteti - Zona | Tirane - Kamez/Paskuqan/Babrru |
| Adresa | Paskuqan, Bashkia Kamez, Shqiperia |
|
PostID: 582216
Lexime:99 |
Data: 17/02/2026
Ora: 11:14
|
Apartament 1+1 për shitje në Kamëz
Ofrohet për shitje një apartament modern 1+1, i përshtatshëm për çifte të reja, banim personal ose investim.
Vendndodhja: Kamëz
Kati: 4 banim
Sipërfaqe Neto: 58.84 m²
Sipërfaqe e Përbashkët: 10.33 m²
Sipërfaqe Totale: 70.58 m²
Faza: Tullë – mundësi ideale për ta përfunduar sipas preferencave tuaja.
Organizim praktik i hapësirave
Zonë në zhvillim me akses të lehtë në shërbime
Mundësi e mirë investimi
Na kontaktoni për më shumë informacion ose për të rezervuar një vizitë në pronë.
Ofrohet për shitje një apartament modern 1+1, i përshtatshëm për çifte të reja, banim personal ose investim.
Vendndodhja: Kamëz
Kati: 4 banim
Sipërfaqe Neto: 58.84 m²
Sipërfaqe e Përbashkët: 10.33 m²
Sipërfaqe Totale: 70.58 m²
Faza: Tullë – mundësi ideale për ta përfunduar sipas preferencave tuaja.
Organizim praktik i hapësirave
Zonë në zhvillim me akses të lehtë në shërbime
Mundësi e mirë investimi
Na kontaktoni për më shumë informacion ose për të rezervuar një vizitë në pronë.