Shtepi ne shitje Apartament ne Tirane, 1+1, Mobilimi Bosh, pa mobiluar, Pagesa 50,912 Euro.

Shtepi ne shitje 53965 Njoftime
20/02/2026
09:02
Share Save
Pagesa 50,912 Euro
Mobilimi 1+1, Bosh, pa mobiluar
Siperfaqa 65 m²
Kati Kati 4, Ashensor 1
Ambienti Apartament
Distanca 3.82 km nga qendra
Deal? Po pranojme agjensi
Vleresim i sistemit ne qera 182 Euro
Qyteti - Zona Tirane - Kamez/Paskuqan/Babrru
Adresa Paskuqan, Bashkia Kamez, Shqiperia
PostID: 582226
Lexime:188
Data: 20/02/2026 Ora: 09:02
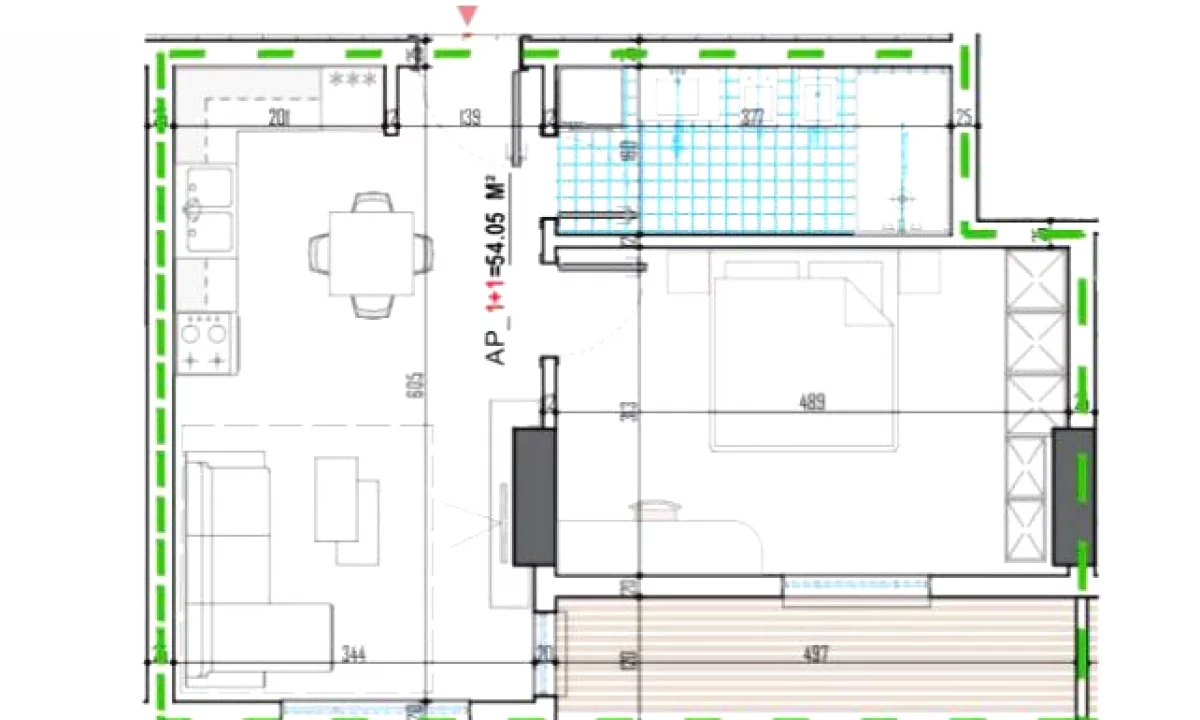
Apartament 1+1 për shitje në Kamëz

Ofrohet për shitje një apartament funksional 1+1, i përshtatshëm për banim ose investim.

Vendndodhja: Kamëz
Kati: 4 banim

Sipërfaqe Neto: 54.05 m²
Sipërfaqe e Përbashkët: 9.59 m²
Sipërfaqe Totale: 63.64 m²

Faza: Tullë – mundësi ideale për personalizim dhe arredim sipas dëshirës.
Organizim praktik i hapësirave
Zonë në zhvillim me akses në shërbimet kryesore
Mundësi e mirë investimi

Kontaktoni për më shumë informacion ose për të planifikuar një vizitë në pronë.
Ndaje
Postimet e reja ne Shtepi ne shitje dhe Prona Imobiliare
OKAZION! Apartament 2+1 per shitje ne "Paskuqan" Family Residence
Pagesa 97,612 Euro
19/03/2026 09:08

Adresa: Paskuqan, Kamez/Paskuqan/Babrru , Tirane

Shiko Detajet
Kamez Apartament 1+1 per shitje
Pagesa 56,185 Euro
19/03/2026 09:07

Adresa: Kamez, Kamez/Paskuqan/Babrru , Tirane

Shiko Detajet
APARTAMENT 1+1 PER SHITJE NE KAMEZ
Pagesa 67,210 Euro
17/03/2026 10:52

Adresa: Kamez, Kamez/Paskuqan/Babrru , Tirane

Shiko Detajet