Shtepi ne shitje Apartament ne Tirane, 3+1, Mobilimi Bosh, pa mobiluar, Pagesa 149,650 Euro.

Shtepi ne shitje 53962 Njoftime
20/02/2026
10:46
Shtepi ne shitje Apartament ne Tirane, 3+1, Mobilimi Bosh, pa mobiluar, Pagesa 149,650  Euro. Shtepi ne shitje Apartament ne Tirane, 3+1, Mobilimi Bosh, pa mobiluar, Pagesa 149,650  Euro.
Share Save
Shtepi ne shitje Apartament ne Tirane, 3+1, Mobilimi Bosh, pa mobiluar, Pagesa 149,650  Euro. Shtepi ne shitje Apartament ne Tirane, 3+1, Mobilimi Bosh, pa mobiluar, Pagesa 149,650  Euro.
Pagesa 149,650 Euro
Mobilimi 3+1, Bosh, pa mobiluar
Siperfaqa 136 m²
Kati Kati 1, Ashensor 1
Ambienti Apartament
Distanca 3.82 km nga qendra
Vleresim i sistemit ne qera 491 Euro
Qyteti - Zona Tirane - Kamez/Paskuqan/Babrru
Adresa Paskuqan
PostID: 582965
Lexime:90
Data: 20/02/2026 Ora: 10:46
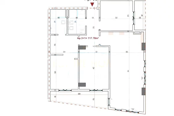
Shitet, Apartament 3+1+2, RingSide Residence, Tiranë.
Apartamenti ndodhet në Paskuqan.
Informacion mbi apartamentin:
* Sipërfaqja bruto: 136.04 m2.
* Sipërfaqja neto: 117.78 m2.
* Kati 1(banim).
* Fazë karabina.
Organizimi:
* Ambient ndenje.
* Ambient gatimi.
* 3 Dhoma gjumi.
* 2 Tualete.
* 2 Ballkone.
Cilësime të tjera:
* Kubaturë e rregullt.
Për një vizitë në pronë na kontaktoni!
AL64416

Gjergji Benxhaj [NR]
Ndaje
Postimet e reja ne Shtepi ne shitje dhe Prona Imobiliare
Shitet, Apartament 2+1, Tirana View Residence, Paskuqan, Tiranë.
Pagesa 93,000 Euro
17/03/2026 17:48

Adresa: Paskuqan, Kamez/Paskuqan/Babrru , Tirane

Shiko Detajet
Shitet, Apartament 1+1, Tirana View Residence, Paskuqan,
Pagesa 73,700 Euro
17/03/2026 17:34

Adresa: Paskuqan, Kamez/Paskuqan/Babrru , Tirane

Shiko Detajet
Shitet, Apartament 1+1, Tirana View Residence, Paskuqan, Tiranë.
Pagesa 58,200 Euro
17/03/2026 17:31

Adresa: Paskuqan, Kamez/Paskuqan/Babrru , Tirane

Shiko Detajet