Shtepi ne shitje Apartament ne Tirane, 1+1, Mobilimi Bosh, pa mobiluar, Pagesa 78,640 Euro.

Shtepi ne shitje 53953 Njoftime
23/02/2026
09:40
Share Save
Pagesa 78,640 Euro
Mobilimi 1+1, Bosh, pa mobiluar
Siperfaqa 64 m²
Kati Kati 1, Ashensor 1
Ambienti Apartament
Distanca 3.82 km nga qendra
Vleresim i sistemit ne qera 261 Euro
Qyteti - Zona Tirane - Kamez/Paskuqan/Babrru
Adresa Paskuqan
PostID: 582967
Lexime:162
Data: 23/02/2026 Ora: 09:40
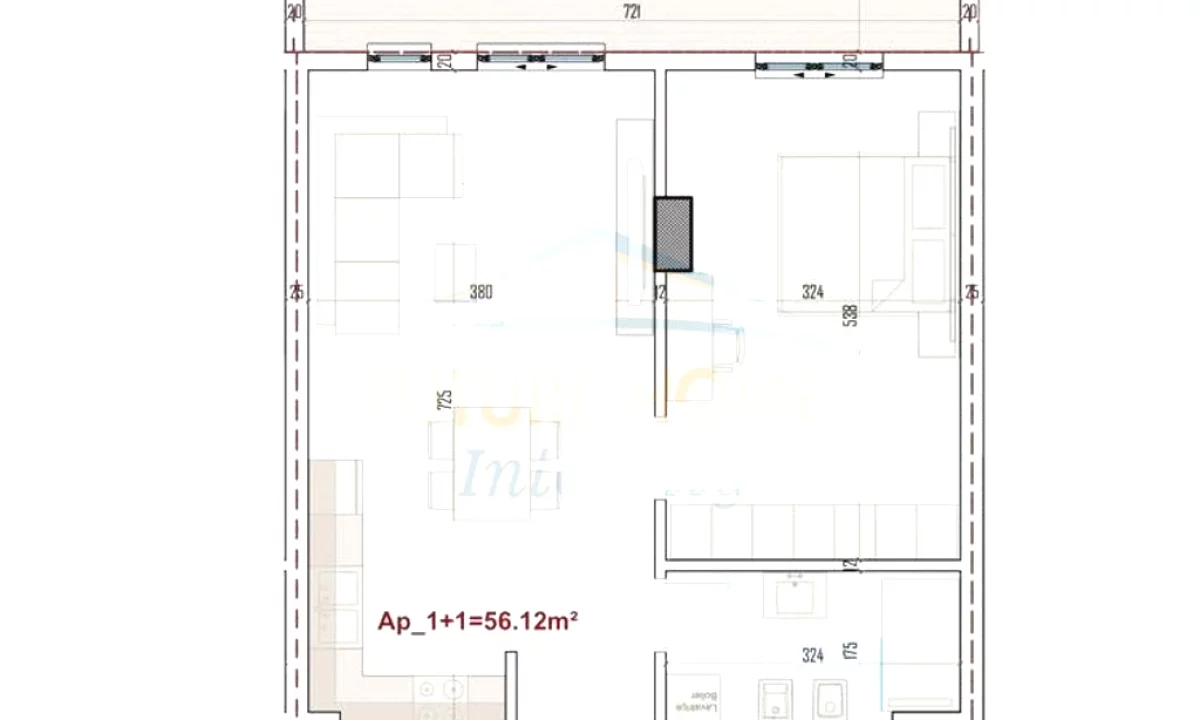
Shitet, Apartament 1+1+Verandë, RingSide Residence, Tiranë.
Apartamenti ndodhet në Paskuqan.
Informacion mbi apartamentin:
* Sipërfaqja bruto: 64.82 m2.
* Sipërfaqja neto: 56.12 m2.
* Sipërfaqja verandës: 13.34 m2.
* Kati 1(banim).
* Fazë suvatimi.
Organizimi:
* Ambient ndenje.
* Ambient gatimi.
* Dhomë gjumi.
* Tualet.
* Verandë.
Cilësime të tjera:
* Kubaturë e rregullt.
Për një vizitë në pronë na kontaktoni!
AL64418

Gjergji Benxhaj [NR]


Ndaje
Postimet e reja ne Shtepi ne shitje dhe Prona Imobiliare
Shitet, Apartament 2+1, Tirana View Residence, Paskuqan, Tiranë.
Pagesa 93,000 Euro
17/03/2026 17:48

Adresa: Paskuqan, Kamez/Paskuqan/Babrru , Tirane

Shiko Detajet
Shitet, Apartament 1+1, Tirana View Residence, Paskuqan,
Pagesa 73,700 Euro
17/03/2026 17:34

Adresa: Paskuqan, Kamez/Paskuqan/Babrru , Tirane

Shiko Detajet
Shitet, Apartament 1+1, Tirana View Residence, Paskuqan, Tiranë.
Pagesa 58,200 Euro
17/03/2026 17:31

Adresa: Paskuqan, Kamez/Paskuqan/Babrru , Tirane

Shiko Detajet