Appartamento in vendita a Tirana 3+1, Vuoto

Casa in vendita 53953 Annunci
15/01/2026
13:03
Share Save
Pagamento 210,000 Euro
Ambiente 3+1, Vuoto
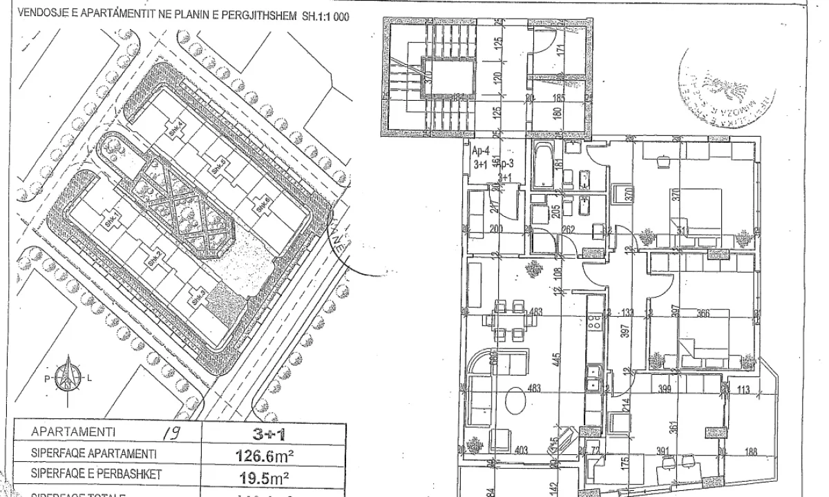
Superficie 146 m²
Piano Piano 7, Ascensore 1
Camere | Soggiorno Appartamento
Distanza 3.01 km dal centro citta
Deal? Po pranojme agjensi
Puo essere affittato mensilmente circa 690 Euro
Citta - Zona Tirana - Astiri/Unaza e re/Teodor Keko
Indirizzo Astir, Qarku i Tiranes, Shqiperia
PostID: 574006
Letture:133
Data: 15/01/2026 Ora: 13:03
La Casa in vendita si trova a Tirana nella Zona "Astiri/Unaza e re/Teodor Keko" che si trova 3.01 km dal centro citta,
Questa Casa in vendita si posizionata al 7 piano e dispone una superfice di 146 m2, 3+1 (Camere | Soggiorno) e l'arredamento per questa casa è "Vuoto"
Share
New posts a Casa in vendita e Immobili
Shitet Apartament 1+1 në Astir
Pagamento 85,000 Euro
28/07/2025 12:14

Indirizzo: Astir Kompleki Fratari, Astiri/Unaza e re/Teodor Keko , Tirane

Shiko Detajet
Shiten Apartamente në Kompleks Rezidencial – Aluna 5 Residence 🌟
Pagamento 68,400 Euro
07/03/2026 12:42

Indirizzo: Paskuqan, Bashkia Kamëz, Shqipëria, Kamez/Paskuqan/Babrru , Tirane

Shiko Detajet
Shitet apartament 1+1  – 60 m² ST.Trenit (USLUGA)
Pagamento 145,000 Euro
19/01/2026 16:01

Indirizzo: Rruga Rreshit Petrela , Stacioni trenit/Rruga e Dibres/Medreseja , Tirane

Shiko Detajet